MIDDLE EAST TRAVEL UPDATE: Eased cancellation & booking flexibility. View conditions
お電話でのご予約
情報をフォロー
健康と幸福な暮らしは切っても切れない関係です。スイスホテルの真髄ともいうべき、バイタリティをご体験ください。
世界中のスイスホテルで持続可能性における標準を維持し、すべてのご滞在に適用しています。
温かい笑顔と心のこもった歓迎でおもてなしいたします。スイスの価値観の素晴らしさはあらゆる場面でご体験いただけます。
* 必須フィールド
ご予約の確認または変更
会員料金をご利用いただけます:ロイヤルティプログラム参加ホテルで最大10%お得に。
Swissotel Chicago(スイスホテル シカゴ)
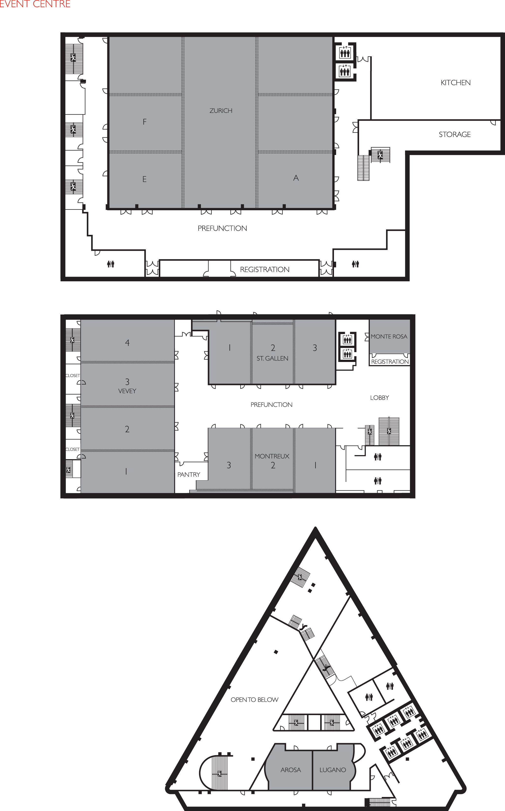
モンテローザは自然光が差し込む大きなオフィススペース、あるいは小さなミーティングルームとしてご利用いただくのに最適なお部屋です。広さ37㎡の空間に、床から天井までの窓を備え、レセプションの際には40名様までをお招きすることができます。
6m x 6m x 4m
クラスルーム - 16名様、バンケット - 30名様、レセプション - 40名様
TEL:+(1) 312 268 8215 Eメール:chicago.events@swissotel.com